Education 2020: Liverpool High School Capital Project

Liverpool Central School District voters approved this capital project on March 14.

Yes: 383
No: 111

As the Liverpool Central School District continues to make progress with the second phase of the Education 2020 implementation, it also is working to develop a deeper understanding of the programmatic and facility improvements necessary to serve the Liverpool community into the future. As part of this initiative, the district is working to utilize resources available to not only address facility needs, but to advance the educational direction of the district.

To that end, the Liverpool CSD has scheduled the Education 2020: Liverpool High School Capital Project Vote for Monday, March 14. Voting will take place from 6 a.m. to 9 p.m. in the Wetzel Road Elementary gymnasium.

Watch the Public Hearing Video here.

Read the Capital Project issue of the School Bell online now!

Voter Registration and Absentee Ballot Information

Download this form to request an Absentee Ballot

Project Schematics

Timeline

  • January 24, 2022: Board Resolution/SEQRA Approval
  • February 9, 2022: Public Presentation at the Liverpool Public Library beginning at 6:30 p.m. (during regularly scheduled Board of Trustees Meeting)
  • February 25, 2022: School Bell Mailed to Community
  • March 8, 2022: Public Hearing at District Office beginning at 6 p.m.
  • March 9, 2022: Public Presentation at Liverpool High School beginning at 6:30 p.m.
  • March 14, 2022: Capital Project Vote at Wetzel Road Building from 6 a.m. to 9 p.m.

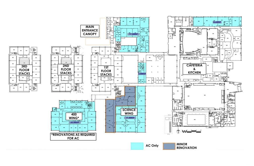
Scope of the Proposed Project

Cost: $72,184,922

Financed by:

  • Capital Reserve Funds (2015-16 & 2020-21)
  • State Education Department Building Aid
  • No Additional Cost to Taxpayers

The proposed capital project will impact five district facilities:

Liverpool High School

  • Major Renovations of the center stack (100s, 200s and 300s)
  • Main Entrance and Canopy Additions
  • Cafeteria and Kitchen Renovations
  • Air Conditioning in Portions of the Building
  • Science Room Upgrades
  • Site Work
    • Track & Field Upgrades including Synthetic Turf Replacement

Morgan Road Complex

  • Band Room
  • Orchestra Room
  • Site Work
    • Parking Lot Expansion
    • Synthetic Turf Softball Field
    • Drainage Improvements

 

Wetzel Road CTE Academy

  • Technology Education Classrooms with High Bay Addition
  • FACS Classrooms
    •  Culinary Lab
    •  Fashion Design Lab
  • Broadcast and Media Marketing Classrooms
  • District Office Improvements
  • Site Improvements
    • Synthetic Turf Baseball Field

Long Branch Elementary & Transportation Center

  • Site Work
    • Drainage Improvements
    • Redesign Parking Lot with Dedicated Bus Loop